Kundehistorie

Vores egen perfekte idé om et sommerhus

og en køkkenfarve, som insta-følgerne afgjorde

Christina er journalist og vært på Aller TV – så hun er skarp på research, og så er hun systematisk og praktisk. Derfor blev der selvfølgelig opstillet en prioriteret liste med krav til det kommende sommerhus. ”Jeg har altid drømt om et klassisk sommerhus – sort træ med hvide småsprossede vinduer og en stor terrasse, og ja – en bar-numse-tæt hæk. Jeg elsker privatliv og ro.” Så prioritet nr. 1 på Christina & Michaels sommerhusliste var naturligvis stilhed og en lukket have.

Tegne, justere, tilpasse, ændre

Efter grundig research på brugt-sommerhus-markedet og erkendelsen af, at hverken Michael eller Christina havde lyst og evner til et gør-det-selv renoveringsprojekt af et ældre sommerhus, justerede de deres fokus og gik på jagt efter en byggegrund.

”Vi havde allerede et sort træhus med hvide sprossede vinduer i tankerne og også tænkt over værelser og indretning, inden vi fandt grunden i Tisvildeleje. Da køb af grund faldt på plads, skulle vi bare finde et firma, som kunne bygge vores sommerhusdrøm,” Christina fortæller og holder samtidig øje med 2-årige Marlon, som leger med LEGO-figurer i alkoven.

”En af grundene til, at vi valgte at bygge med Planet Huse er, at man gratis kan få lov til at ændre i standardplantegningerne. På den måde kommer man lidt væk fra ‘typehus-viben’ og får mulighed for at skabe sin egen perfekte idé om et sommerhus. Hele processen med at tegne indretningen var fantastisk for os, og resultatet er så meget VORES sommerhus”.

Instagram-følgerne valgte køkkenfarven

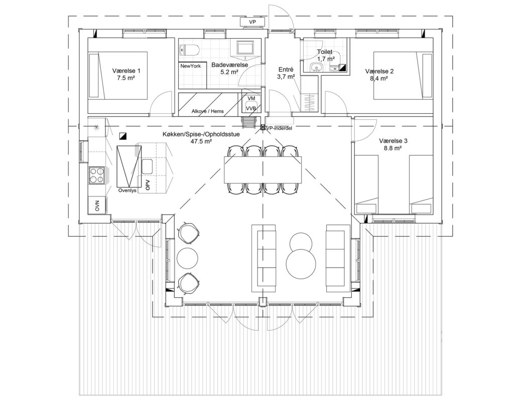
Deres udgangspunkt er et Nova 102/92, hvor vinklen er rykket ind på midten af huset, så huset er blevet til et symmetrisk T-hus. På den måde bliver fællesrummet kvadratisk, og det var præcist det, Christina & Michael ønskede sig. Christina slår ud med armene, ”Michael og jeg var fra start enige om, at vi gerne ville have et kæmpestort køkkenalrum/stue, og ikke nødvendigvis så store værelser.”

De mere end 10.000 følgere på Christinas Instagram-profil blev også inddraget i processen, og de havde endda medindflydelse. Der var både afstemning omkring nødvendigheden af et gæstetoilet (det blev et ja), og så var der farven på køkkenet, hvor parret ikke var enige. Resultatet blev det smukke olivengrønne køkken med egetræsbordpladen, som i øvrigt var Michaels valg.

Til sidst i processen blev sommerhuset udvidet, så de to værelser på øst-siden blev gjort 60 cm større. De var simpelthen blevet for små i forløbet med at få det perfekte køkken/alrum/stue. Det blev til i alt 98 kvm og en lækker stor terrasse på 52 kvm, for som de fortæller, så skal vi have plads til masser af gæster og store mængder Aperol. At det bliver til for lidt Aperol for Christinas vedkommende, vender vi tilbage til.

Møbelfund i en Coronatid

Grundkøb og plantegning faldt på plads hen over sommeren og godt en måned efter overtagelsen af grunden, gik arbejdet med at planere og klargøre til at støbe fundamentet i gang. Den lille familie kørte ugentlige ture til Tisvildeleje for at følge det hele fra sidelinjen og lære området at kende. Og fra den ene uge til den næste stod der så det fineste sommerhus.

Byggeperioden var præget af den ene corona-nedlukning efter den anden, så udover at følge byggeriet, blev fritiden brugt på at købe møbler online og udtænke placeringen af dem. Udgangspunktet er klassiske genbrugs-møbler, varme farver og i det hele taget LEVERUM. Marlon skal kunne løbe ind og ud med sko på, og der må ikke opstå krise, hvis der spildes rødvin på gulvet. Og sådan er det blevet. Christina kalder det et magisk sted, og Michael og Marlon er helt enige. ”Det har været den dyreste, men den absolut bedste beslutning i 2020, og vi elsker at være her.”

Ikke en HAPPY END… og så alligevel

Men nogle gange sker der ting, der gør, at man må sige farvel til noget godt, og sådan er det i historien om Marlon, Michael & Christina. Marlon skal nemlig være storebror … til tvillinger, og så skal lejligheden i city skiftes ud med et hus, og det koster. Og for at det kan lade sig gøre, så skal det smukke sommerhus sælges. ”Jeg har seriøst grædt over at skulle sætte sommerhuset til salg”, fortæller Christina. ”Jeg kan klart anbefale at arbejde hjemmefra i et sommerhus og alle de weekender, vi har været her, har været præcis som weekender i et sommerhus skal være. Vores eneste trøst er, at vi får et stort overskud på at sælge det.”

Michael er kædechef i OK Køkkenrenovering, og det olivengrønne køkken var hans idé, og Christinas Instagram-følgere stemte også for grønt.

Bybarnet Marlon nåede at fodre en hest og se sin første traktor den uge i december, hvor de overtog sommerhuset.

Mød andre familier

Bliv inspireret af andre familier, som fik bygget deres drømmesommerhus med Planet Huse.

Se alle kundehistorier

Et helt unikt fristed

Lene & Toke ønskede en kontrast til deres rækkehus i København med mange mindre rum og tæt på naboerne. I Nordsjælland fik de deres helt eget unikke sommerhus.

Læs kundehistorie

De valgte Danmark fremfor Spanien til sommerhuset

Mød familien, som skiftede prioriteter, da pandemien ramte verden.

Læs kundehistorie

Pottemagerens pusterum

Et pottemagerværksted, en fantastisk foldedør og et helt personligt indretningselement. Se familiens helt personlige pusterum.

Læs kundehistorie